


INSERM, Animalerie, site de Hôpital Bichat.
Restructuration et extension de l’animalerie.
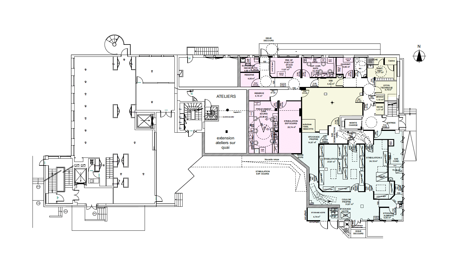
Le laboratoire de rechercher vasculaire a entrepris la rénovation et l’extension de sa plateforme pour ses activités de recherche située sur le site Centre Hospitalo-Universitaire Xavier Bichat à Paris.
L’opération vise à regrouper la zone d’hébergement / expérimentation et la logistique centrale sur un même niveau par une restructuration de l’ensemble du rez-de-chaussée.
Ces installations ont permis la réalisation de nouveau programme de recherche.
Maîtrise d’ouvrage : INSERM
BET : BIM Ingénierie
Budget : non communiqué


